Start
Häuser
Bungalows
Bungalow 100
Bungalow 120
Bungalow 180
Einfamilienhäuser
HoME.100
HoME.128
HoME.130
HoME.135
HoME.145
HoME.165
Stadtvillen
Haus Florenz
Haus Milano
Haus Rimini
Haus Verona
Sommer Highlight
Architektenhäuser
Haus Mozart
Haus Wagner
Haus Brahms
Haus Händel
Haus Vivaldi
Haus Verdi
Haus Strauss
Reihen- Doppelhäuser
Haus Waldshut-Tiengen
Mehrfamilienhäuser
Haus Feldberg
Haus Geno 100
Haus Geno 120
Haus Geno 300
Gewerbebau
Weitere Projekte
Barrierefrei Wohnen
Referenzen / Kundenhäuser
Energie & Technik
Null-Liter Konzept
B & B Haus-Polarhülle
Unternehmen
Wir über uns
Philosophie
Produktionsstätte
Bemusterungszentrum
Jobs & Karriere
Aktuelle Großprojekte
Objekte & Angebote
Ihre Vorteile
Kontakt
Bungalows
Einfamilienhäuser
Stadtvillen
Architektenhäuser
Reihen- Doppelhäuser
Mehrfamilienhäuser
Gewerbebau
Barrierefrei Wohnen
Referenzen / Kundenhäuser
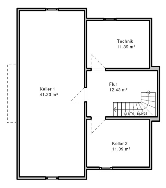
HoME.145
Steckbrief
Außenmaße:
8,50 x 10,70 m (zzgl. Erker im Traufbereich und Treppenhaus)
Dachform:
Versetztes Pultdach 22º
Wohnfläche:
131,46 m²
Nutzfläche:
76,44 m²
Kniestock:
2,43/1,94 m
HoME.128
zur Übersicht